1000 (modules/words/ moments) to 1 (building/sentence/ story) finds itself in the heart of what was once a bustling industrial district of Downtown Los Angeles. With co-working at the forefront, this programmatic arrangement aims to engage a diversity of users through a formal, tectonic and spatial application of emerging material technologies: Cross-Laminated Timber. Highly responsive to immediate contexts through it’s formal manipulation, the modular system becomes an active landscape into the building, users begin to connect interior and exterior conditions through the intersection of these seemingly separate experiences.

FORM

EVOLUTION

DEVELOPMENT
Intergration
INTEGRATION
Site Plan
Site Plan
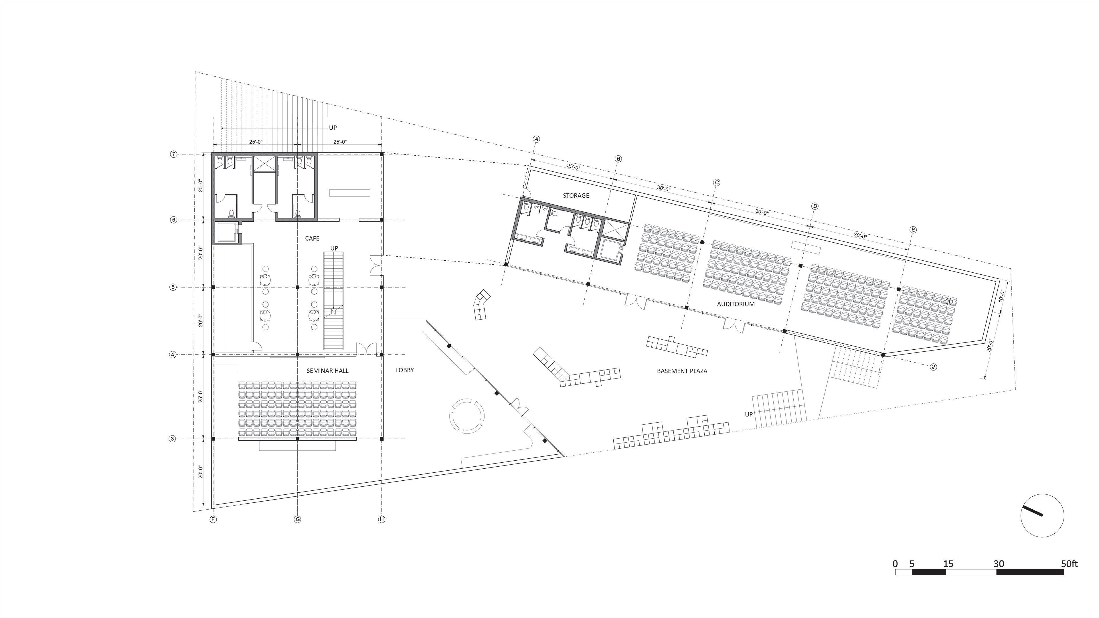
PLAN- Basement Floor
PLAN- Basement Floor
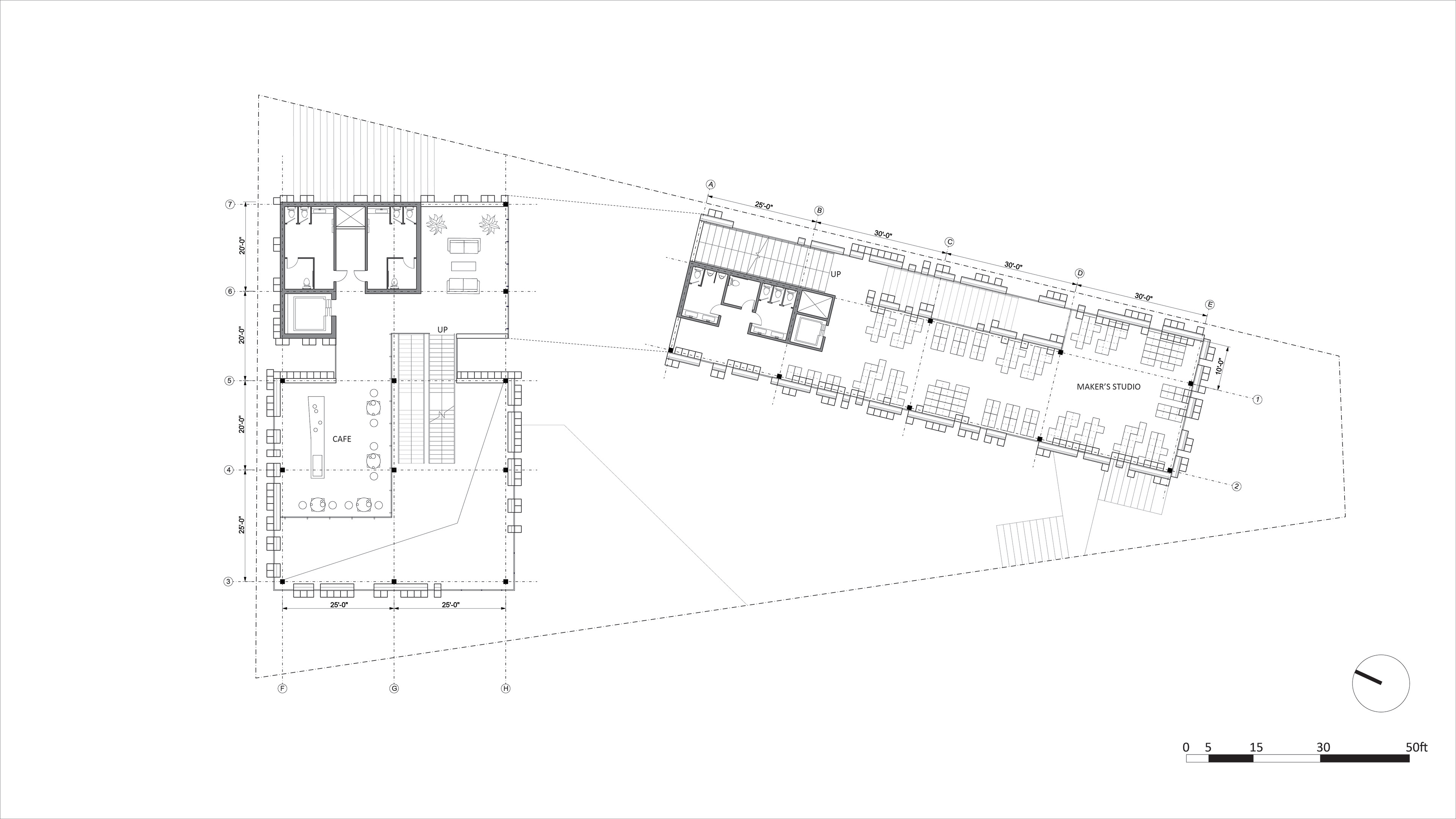
Plan- First Floor
Plan- First Floor
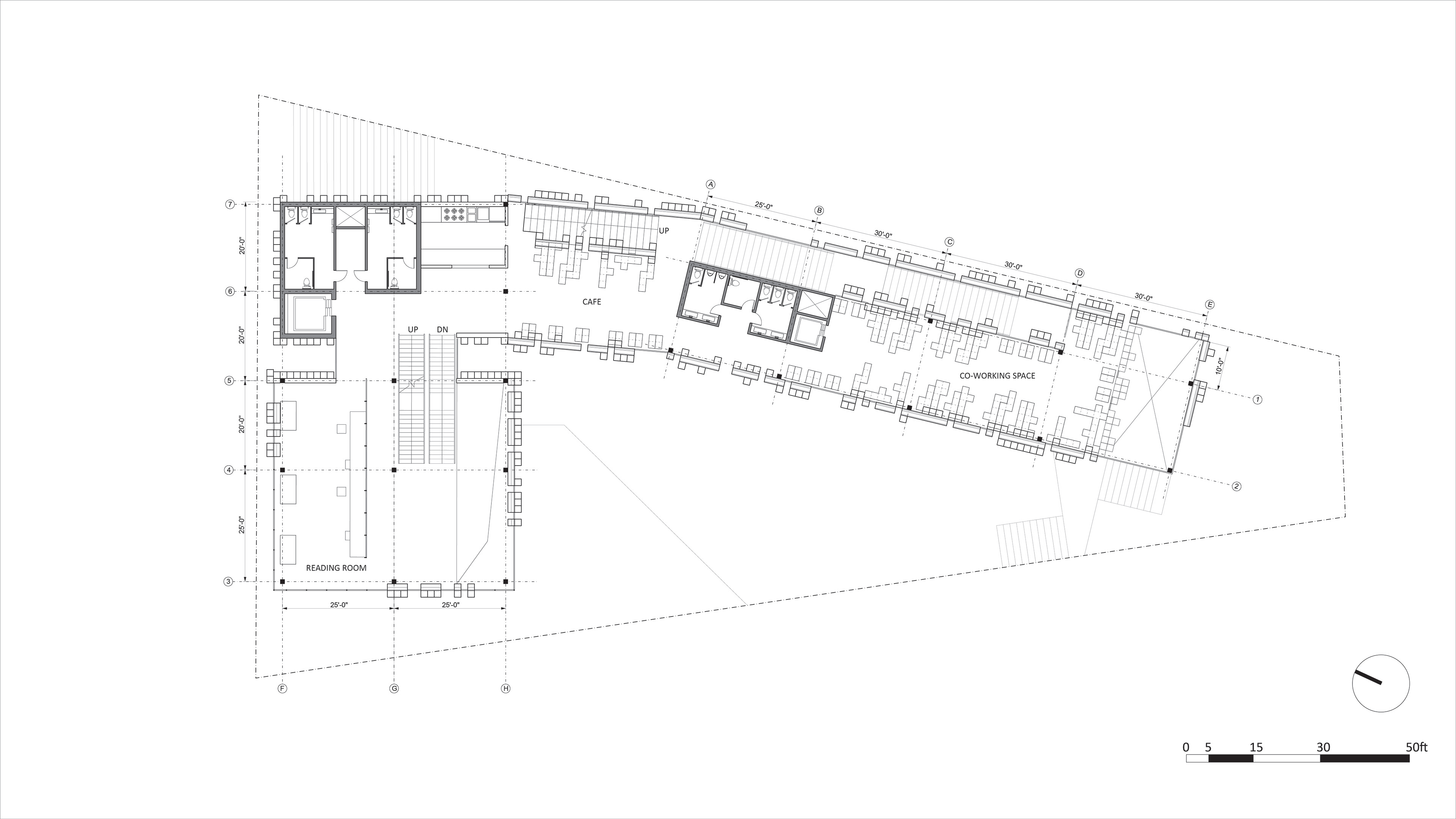
PLAN- Second Floor
PLAN- Second Floor

You may also like

Back to Top