The container hostel is a 5 story building with 22 rooms located in a busy neighborhood. The 1980 square foot structure aims to meet the growing demand for residential property in the area and creates a landmark building that attracts diverse individuals. The building is designed entirely from old brightly painted shipping containers, transformed into quirky industrial abodes, connected by semi open- air walkways.
 Joining the project team during schematic design I assisted in unit design and development of the building form and facade. Concept and design development drawings, 3D digital modeling, market consultation and neighborhood studies were all instrumental in building ‘s evolution.
Ground floor plan
Ground floor plan
First floor plan
First floor plan
Second- Third floor plan
Second- Third floor plan
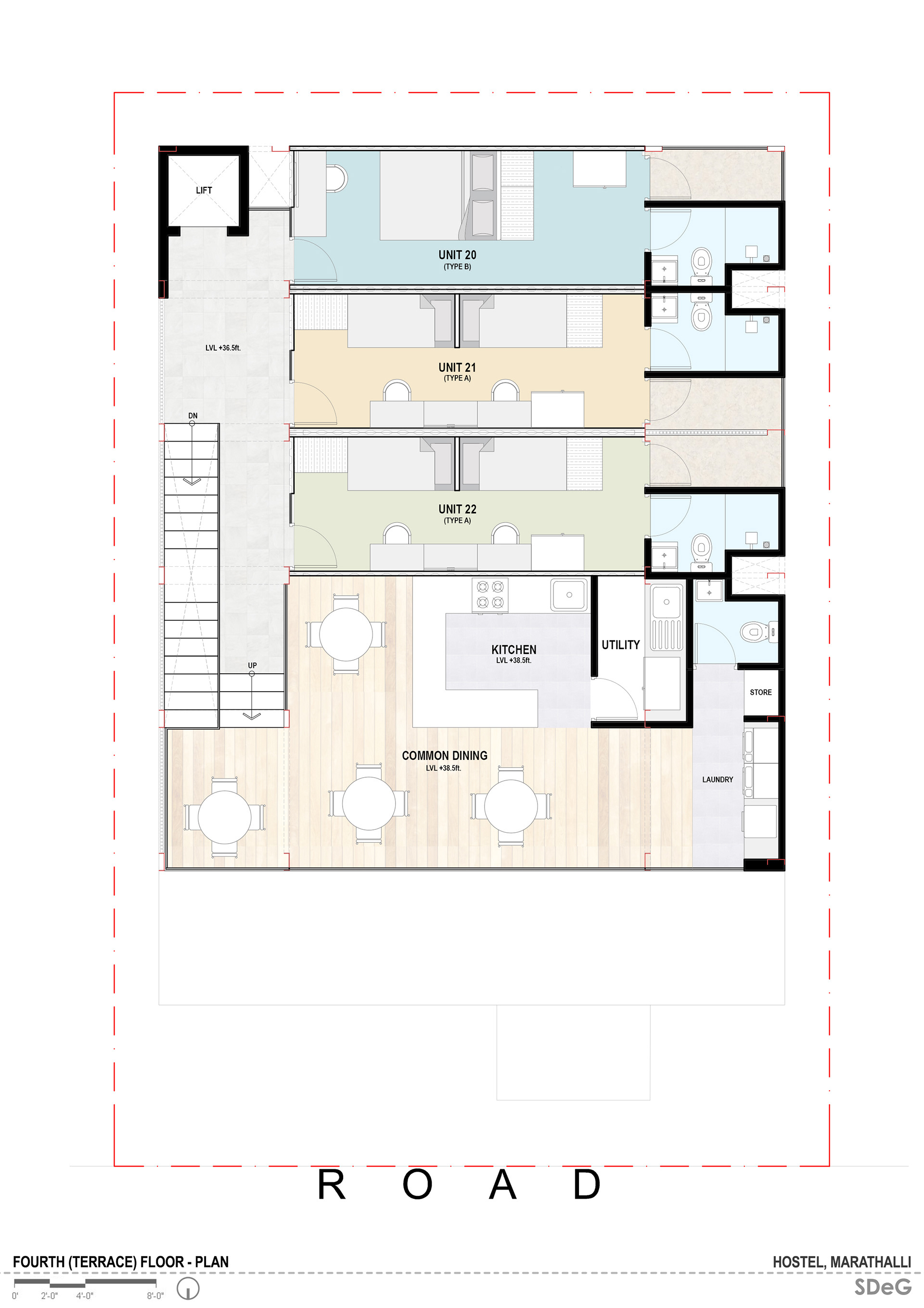
Fourth floor plan
Fourth floor plan

You may also like

Back to Top